Floatmap logo

Ahmed Sharaf Villa

Year

2025

Location

United Arab Emirates

Type

Residential

Services

Engineering, Architecture & Aesthetics

Developer

Mr. Ahmed Sharaf

Size

750.4 m²

Status

Completed
Ahmed Sharaf Villa

Ahmed Sharaf Villa is a private 750.4 m² residence in Dubai, UAE, exemplifying refined contemporary design. The villa combines spatial openness, seamless indoor-outdoor connections, and high-end finishes tailored to the client’s lifestyle, offering both luxury and functional elegance. The design emphasizes modern architectural language while responding to the specific needs and preferences of the owner. Through meticulous material selection, careful spatial planning, and attention to detail, the villa creates a sophisticated living environment that balances comfort, privacy, and aesthetic appeal.

A private villa showcasing refined contemporary design,

integrating spatial openness and high-end finishes tailored to

the client’s lifestyle.

Project Shots

Project Shot 1
Project Shot 2

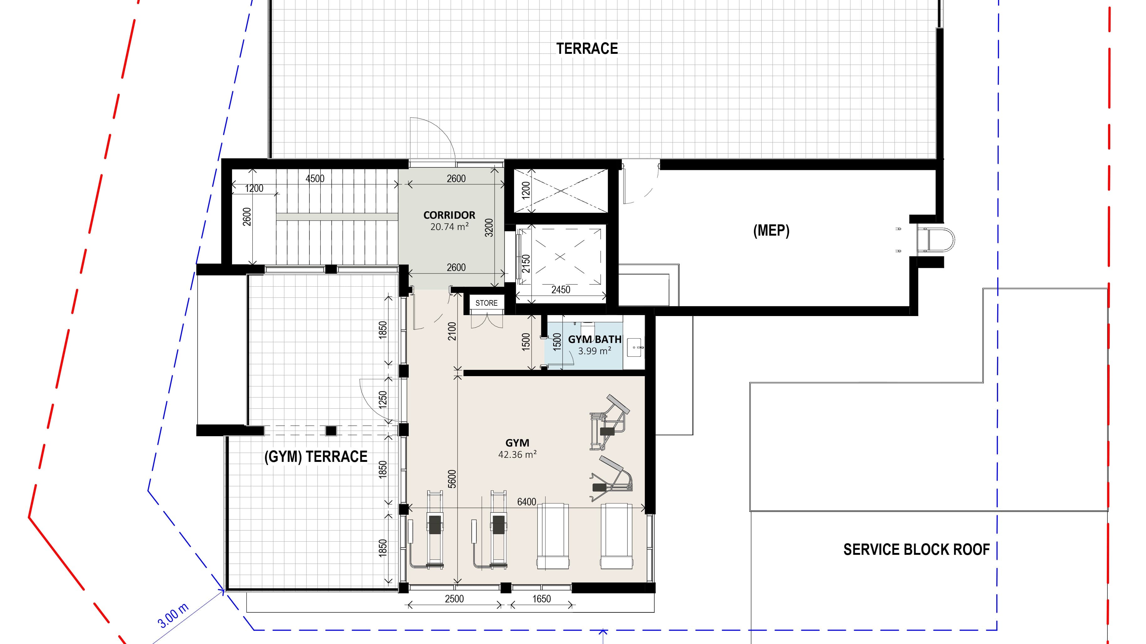
Project Diagrams

Project Diagram 1
Project Diagram 2
Project Diagram 3
Project Diagram 4
Project Diagram 5