السنة
الموقع
النوع
الخدمات
المطور
الحجم
الحالة

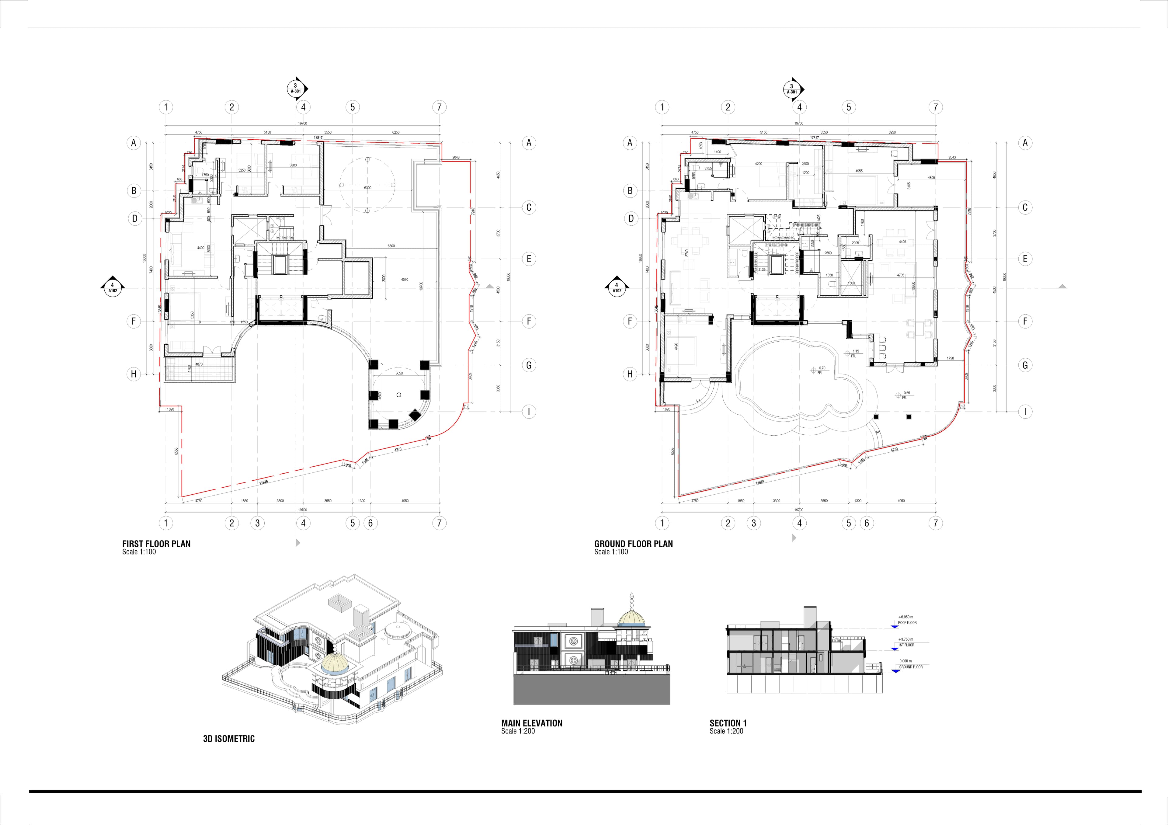
يظهر بنتهاوس الأندلس كعلامة معمارية بارزة فوق أفق الإسكندرية المتوسطي، حيث يتوّج مبنى تاريخي بتجربة سكنية تجمع بين الرقي المعاصر وروح العمارة الأندلسية. تتكوّن الواجهة من خطوط منحنية، قبة ذهبية لامعة، وتفاصيل مشعّة مستوحاة من الطراز الأندلسي الجديد، مقدّمة رؤية حديثة تعكس الدقة والخصوصية. يمتزج البياض الناعم مع الزجاج الأزرق العميق واللمسات الذهبية ليصنع حضورًا بصريًا يعكس النقاء والحيوية الساحلية. وفي الداخل، تمنح الواجهات الزجاجية الممتدة على ارتفاع طابقين وأرضيات الحجر المستمر مساحات مضيئة ذات طابع هادئ، حيث تتناغم الإضاءة الطبيعية مع تصميمات داخلية بسيطة وراقية. يمثل بنتهاوس الأندلس مزيجًا متناغمًا بين التاريخ والجمال العصري، ليقدّم تجربة سكنية متفرّدة تعبّر عن روح الإسكندرية الحديثة وأناقتها الساحلية.
.png&w=3840&q=75)



.png&w=3840&q=75)
.png&w=3840&q=75)
.png&w=3840&q=75)
.png&w=3840&q=75)


