السنة
الموقع
النوع
الخدمات
المطور
الحجم
الحالة

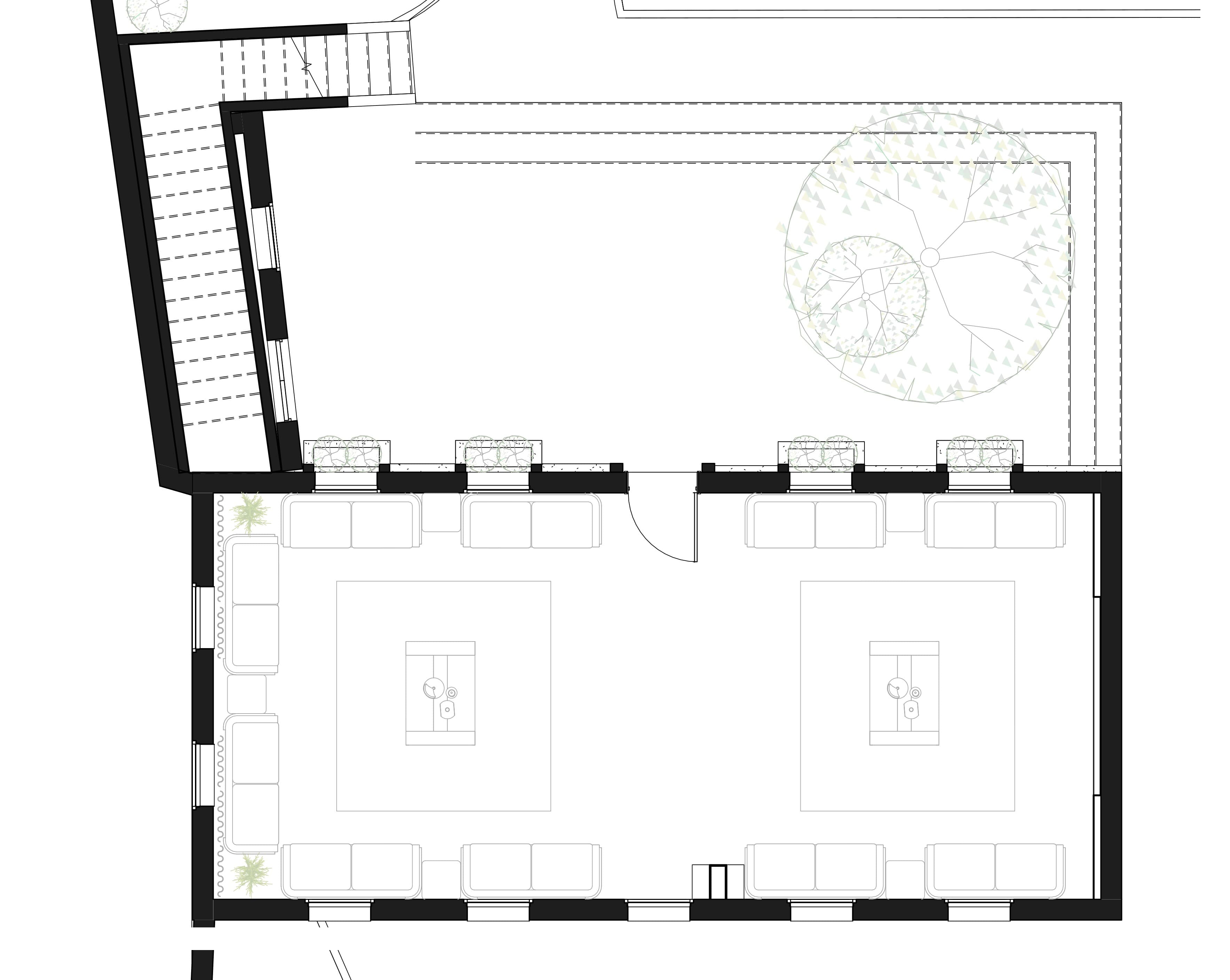
إيكوهارموني ريزيدنس – مشروع سكني مستدام يجمع العمارة العُمانية بالطراز العصري يمتد مشروع إيكوهارموني ريزيدنس على مساحة 1200 متر مربع في ولاية بركاء – سلطنة عُمان، ويُعد نموذجًا متقدمًا لـ المشاريع السكنية المستدامة التي تجمع بين الأصالة المحلية والتكنولوجيا الحديثة.


ركز المشروع على تحقيق توازن دقيق بين العمارة العُمانية التقليدية والاحتياجات السكنية العصرية، مع دمج عناصر جمالية تعتمد على:
هذا النهج يُجسد أحد أهم مفاهيم التصميم المستدام في الخليج ويعكس قدرة Floatmap على تنفيذ مشاريع سكنية تتماشى مع الهوية المحلية دون التخلي عن معايير الراحة والحداثة.
بهدف تعزيز كفاءة الطاقة وتحسين أداء المبنى في المناخ الصحراوي:
هذا الدمج بين الهندسة الحديثة والتصميم المحلي جعل المنزل أكثر قدرة على الصمود أمام حرارة عُمان القاسية، مع تقليل استهلاك الكهرباء بشكل كبير.
عمل فريق Floatmap على:
هذه الخطوات مكّنت العميل من رؤية المشروع بصورة واضحة قبل التنفيذ، مما يعكس قوة خدماتنا في BIM والتصور البصري داخل المشاريع السكنية.
جاء تصميم إيكوهارموني ريزيدنس متناغمًا مع:
النتيجة هي منزل مرن، مريح، ومستدام يقدم تجربة سكنية تجمع بين الحداثة و الجماليات الخالدة للتقاليد العُمانية
إيكوهارموني ريزيدنس ليس مجرد منزل؛
بل هو تحفة معمارية مستدامة تجمع بين:
هذا المشروع هو مثال واضح على قدرة Floatmap على خلق تصميمات سكنية عصرية ومتكاملة تراعي البيئة وتُحافظ على الهوية المحلية.




.jpg&w=3840&q=75)

