السنة
الموقع
النوع
الخدمات
المطور
الحجم
الحالة

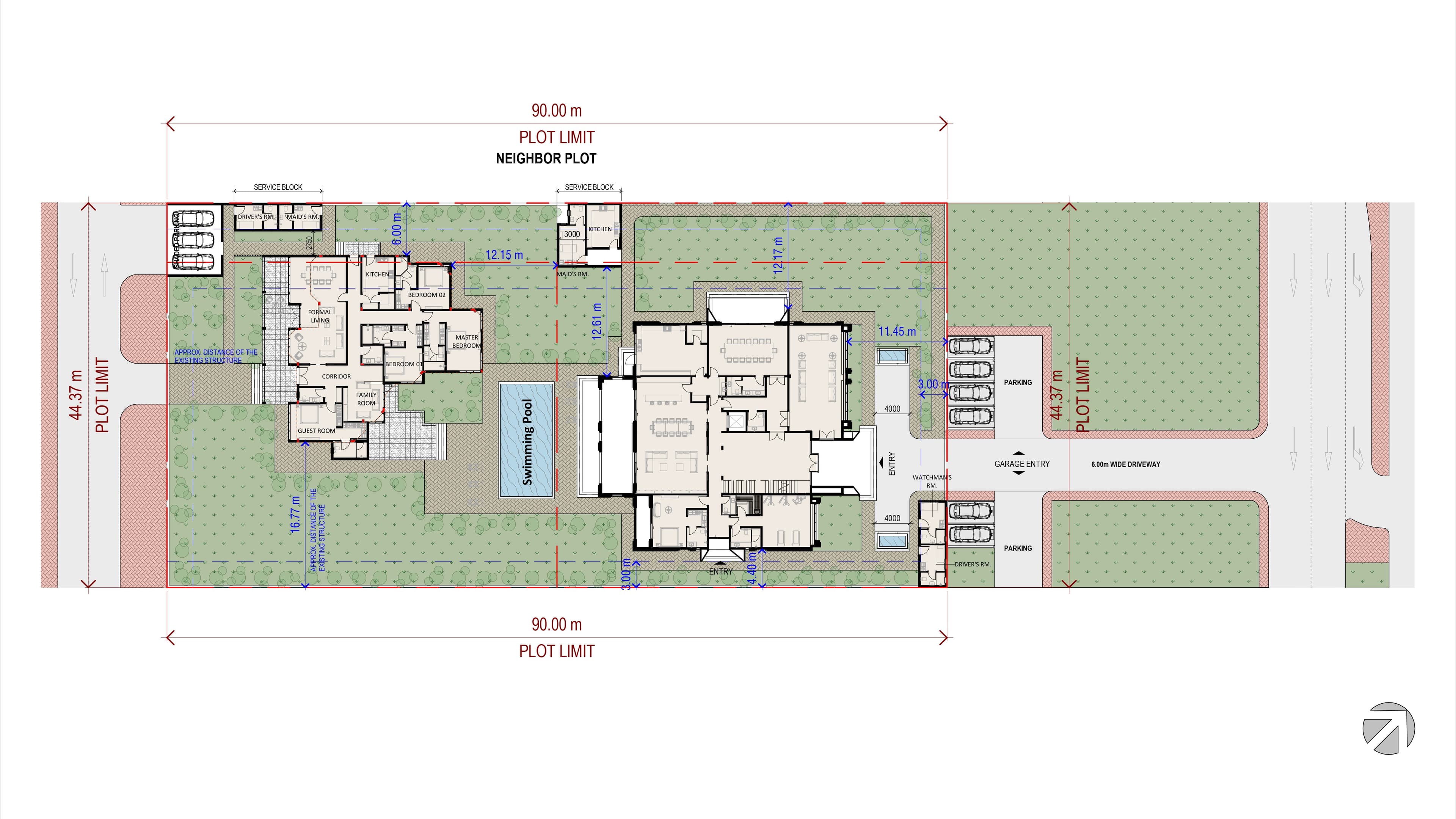
تقع فيلا ADCI في دبي، الإمارات العربية المتحدة، وتمثل نموذجًا فاخرًا للمساكن العائلية بمساحة 682 م²، حيث تمزج بين لغة العمارة الحديثة والمواد المحلية المصمّمة بعناية. يركّز المشروع على الاندماج السلس بين المساحات الداخلية والخارجية لتعزيز التواصل مع البيئة المحيطة، مع توفير أقصى درجات الراحة، الأناقة، والوظيفية المناسبة لحياة الأسرة العصرية.
تقع فيلا ADCI في مدينة دبي – الإمارات العربية المتحدة، وتمتد على مساحة 682 متر مربع لتقدم نموذجًا راقيًا من تصميم الفيلات الحديثة التي تجمع بين الفخامة، الراحة، والوظيفية العالية. يشكّل المشروع مثالًا مميزًا على الهندسة السكنية الفاخرة في دبي، حيث يمتزج التصميم المعماري المعاصر مع استخدام مواد محلية مختارة بعناية تناسب السياق الإماراتي والمناخ الصحراوي.
يعتمد المشروع على لغة معمارية عصرية ومتناغمة تعطي للفيلا حضورًا بصريًا قويًا، مع الحفاظ على روح السياق المحلي.
تركّز الفيلا على تحقيق توازن مثالي بين:
وتعكس خطوط التصميم والفراغات الهندسية رؤية معمارية راقية تُبرز العمارة الحديثة في الإمارات.
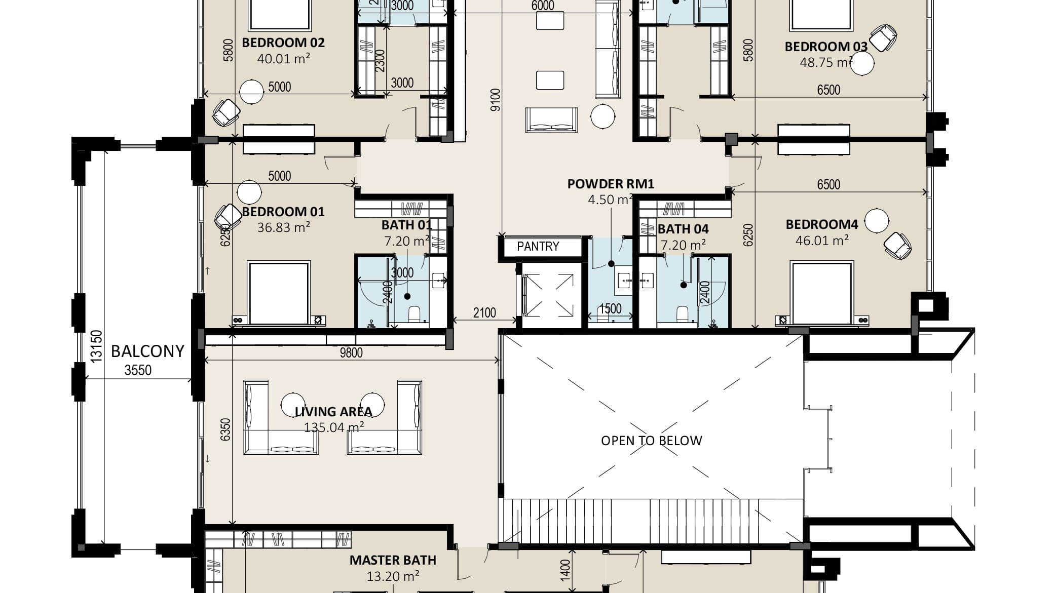
أحد العناصر الأساسية التي تميّز فيلا ADCI هو الدمج السلس بين الفراغات الداخلية والخارجية، وهو مفهوم ينسجم بقوة مع أسلوب العيش في دبي.
يشمل التصميم:
هذا الدمج يُسهم في خلق تجربة معيشية فاخرة تستفيد من البيئة المحيطة وتُعزّز الشعور بالراحة والانفتاح.
تم اختيار المواد بعناية فائقة لتقديم مستوى فريد من الفخامة والدوام، بما يناسب مشاريع الفيلات السكنية في دبي.
يشمل ذلك:
يجمع هذا الاختيار بين الأناقة والوظيفية، ويُبرز جودة البناء والتفاصيل الدقيقة التي تُعرَف بها الفيلات الفاخرة في دبي.
يتمحور تصميم المناظر الطبيعية حول خلق علاقة بصرية وانسيابية بين البيت والحديقة، من خلال:
هذا التكامل يعكس مفهوم العمارة السكنية المعاصرة في الإمارات التي تُولي أهمية خاصة للهواء الطلق والخصوصية والراحة.
يمثل المشروع تجربة سكنية متكاملة تجمع بين:
وبفضل هذا المزج بين الفخامة والراحة، تُعَد فيلا ADCI واحدة من النماذج المتميزة لـ تصميم الفيلات الحديثة في دبي، وتقدّم رؤية واضحة لأسلوب حياة معاصر يناسب الأسر التي تبحث عن تفرّد، جودة، وتجربة معيشية راقية.





